ID CP2575215

Apartament cu 3 camere| Dorobanti Capitale

ID CP2575215

420,000 €

Apartament cu 3 camere de vânzare
Capitale, Bucuresti
74.8 mp
1960

Impact Real Estate Advisors vă propune spre vânzare un apartament elegant cu 3 camere, situat la etajul 1 al unei vile interbelice cu regim de înălțime P+2, poziționată pe Strada Roma, în prestigiosul cartier Dorobanți – Capitale, una dintre cele mai exclusiviste și căutate zone din București.

Această proprietate recent renovată complet la standarde de lux, nelocuită, impresionează prin rafinament și funcționalitate, fiind ideală pentru o familie sau un cuplu care își dorește un cămin într-un imobil cu caracter și istorie.

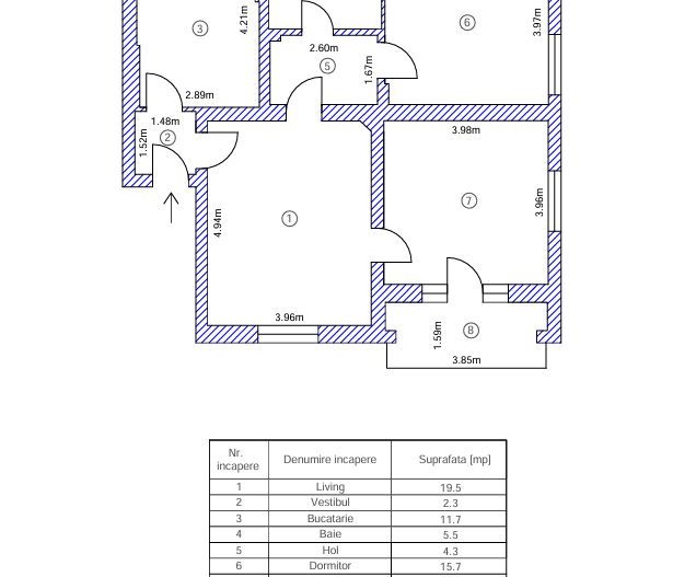
Suprafață utilă: 75 mp + balcon de 6 mp. Compartimentare semidecomandată: dispune de living, 2 dormitoare, 2 holuri de trecere, bucătărie închisă, baie, balcon.

Vila interbelică are doar 6 apartamente, curte comuna, de aproximativ 600 mp, oferind intimitate și un stil de viață liniștit.

Dotări:

- Centrală termică proprie pe gaz

- Încălzire prin calorifere

- Finisaje premium, materiale de calitate superioară

Vecinătăți și puncte de interes: Parcul Kiseleff, Piața Dorobanți, Liceul Ion Luca Caragiale

Acces facil către zonele centrale și de business ale capitalei.

Aceasta este o proprietate rară pe piață, ce îmbină farmecul arhitecturii interbelice cu confortul contemporan.

Pentru detalii suplimentare și programarea unei vizionări, nu ezitați să ne contactați!

Citește mai mult

  • Tip apartament
    Apartament
  • Compartimentare
    Semidecomandat
  • Număr camere
    3
  • Dormitoare
    2
  • Număr bucătării
    1
  • Număr băi
    1
  • Geam la baie
    Da
  • Etaj
    1
  • Suprafață utilă
    74.8 mp
  • Disponibilitate
    Imediat
  • Orientare
    Sud-Est
  • Confort
    Lux
  • Stare interior
    Ultrafinisat
  • Anul finisării
    2025
  • Număr balcoane
    1
  • Imobil
    Casă / Vilă
  • Stadiu construcție
    Finalizată
  • An construcție
    1960
  • Tip construcție
    Beton
  • Număr etaje clădire
    2

Facilități

Acoperiș
Aer condiționat
Apă
Aragaz
Bucătărie închisă
Bucătărie mobilată
Cabină de duș
Cadă
Calorifere
Canalizare
Centrală proprie
Curte comună
Dressing
Ferestre PVC
Frigider
Geamuri termopan
Gresie
Iluminat stradal
Mașină de spălat rufe
Mașină de spălat vase
Mijloace de transport în comun
Mobilat lux
Parchet
Străzi asfaltate
Străzi betonate
TV
Ușă intrare metal
Videointerfon
Vopsea lavabilă
Alexandra Smarandoiu - IMPACT REAL ESTATE ADVISORS
Alexandra Smarandoiu
Broker

0745394222


Solicită chiar acum o vizionare
Telefon
Sună acum Solicită vizionare
Necesare:

Site-ul nu poate funcționa corect fără aceste cookie-uri. Vezi cookie-urile

Statistică:

Strângem statistici anonime despre voi, vizitatorii unici, pentru a vă îmbunătăți experiența dumneavoastră. Vezi cookie-urile

Marketing:

Pentru a ne promova mai eficient serviciile noastre, folosim cookies pentru a vă identifica și a vă oferi proprietăți și servicii personalizate. Vezi cookie-urile

Acest site folosește cookies, află detalii. Alege ce tipuri de cookies dorești să permitem: