ID CP2520819

Ultracentral | 3 camere | 37 mp terasa | Centralis | Parcare

Această proprietate nu mai este activă,
te invităm să vizualizezi proprietăți similare

ID CP2520819

519,000 € (negociabil) + 21% TVA

Apartament cu 3 camere de vânzare
Universitate, Bucuresti
85.2 mp
2024

Va propunem spre achizitie un apartament superb cu trei camere situat in inima capitalei, in zona Universitate.

LOCALIZARE:

Apartamentul este situat in sectorul 1 al capitalei, in zona Universitate, in imediata apropiere a:

- Metrou Universitate;

- Teatrul National Bucuresti (TNB) la doar cativa pasi;

- Numeroase mijloace de transport in comun;

- Numeroase centre de invatamant in zona;

- Numeroase centre culturale in zona;

- Numeroase zone de recreere (Baruri, cafenele, restaurante).

DESPRE PROPRIETATE:

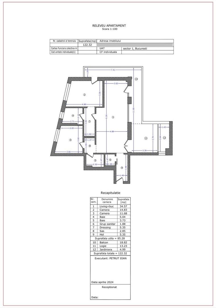
Locuinta are o suprafata totala de 122.32mp din care 37mp reprezinta suprafata terasei.

- Holul are o suprafata de 5.35mp, cu acces catre grupul sanitar;

- Zona de zi cu o suprafata totala de 34.57mp, este deschisa catre bucatarie (se poate inchide cu usurinta), cu acces catre terasa din ambele spatii;

- Bucataria este mobilata si utilata;

- Zona matrimoniala ce include o baie privata cu cada si un spatiu special creat pentru dressing;

- Dormitor secundar;

- Baie dotata cu o cabina de dus.

Vanzator Persoana Juridica, se aplica TVA

Parcarea se achizitioneaza separat si este situata la subsolul imobilului.

Citește mai mult

  • Tip apartament
    Apartament
  • Compartimentare
    Semidecomandat
  • Număr camere
    3
  • Dormitoare
    2
  • Număr bucătării
    1
  • Număr băi
    3
  • Geam la baie
    Da
  • Etaj
    1
  • Suprafață utilă
    85.2 mp
  • Suprafață construită
    136 mp
  • Suprafață totală
    122.32 mp
  • Suprafață terasă
    37.04 mp
  • Disponibilitate
    Imediat
  • Orientare
    Sud-Est
  • Confort
    Lux
  • Stare interior
    Ultrafinisat
  • Anul finisării
    2024
  • Număr terase
    1
  • Număr locuri parcare
    1
  • Imobil
    Bloc de apart.
  • An construcție
    2024
  • Construcție nouă
    Da
  • Număr etaje clădire
    3
  • Număr etaje retrase
    1
  • Număr subsoluri
    2

Facilități

Acces pentru persoane cu dizabilități
Aer condiționat
Apă
Apometre
Bucătărie mobilată
Bucătărie utilată
Cabină de duș
Cadă
Canalizare
CATV
Contor electric
Curent
Ferestre care se deschid
Garaj subteran
Gaz
Geamuri cu izolație fonică
Geamuri cu protecție UV
Geamuri termopan
Geamuri tripan
Gresie
Iluminat stradal
Încălzire prin pardoseală
Interfon
Internet
Izolație exterioară
Lift
Mașină de spălat rufe
Mașină de spălat vase
Mijloace de transport în comun
Mobilat parțial
Parchet
Străzi asfaltate
Telefon
Ușă intrare metal
Uși interior MDF
Vedere spre oraș
Videointerfon
Vopsea lavabilă
WC Serviciu
Wireless
Necesare:

Site-ul nu poate funcționa corect fără aceste cookie-uri. Vezi cookie-urile

Statistică:

Strângem statistici anonime despre voi, vizitatorii unici, pentru a vă îmbunătăți experiența dumneavoastră. Vezi cookie-urile

Marketing:

Pentru a ne promova mai eficient serviciile noastre, folosim cookies pentru a vă identifica și a vă oferi proprietăți și servicii personalizate. Vezi cookie-urile

Acest site folosește cookies, află detalii. Alege ce tipuri de cookies dorești să permitem: