ID CP2391763

Apartament 4 camere | 241mp totali | 88mp terasa | Hils Brauner

Această proprietate nu mai este activă,
te invităm să vizualizezi proprietăți similare

ID CP2391763

252,100 € (negociabil) + 21% TVA

Apartament cu 4 camere de vânzare
Theodor Pallady, Bucuresti
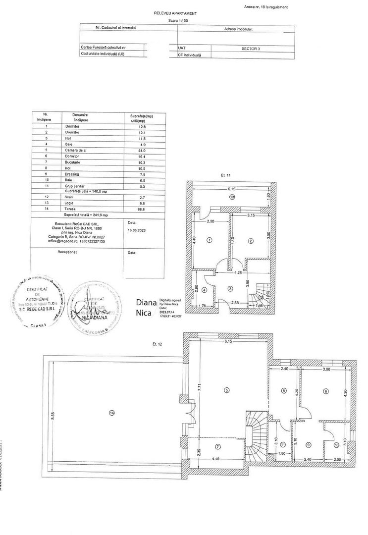
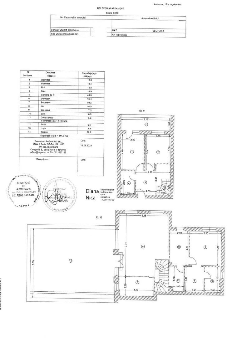
140.8 mp
2023

Impact Real Estate Advisors va propune spre vanzare un apartament tip duplex din complexul rezidential Hils Brauner

LOCALIZARE:

Apartamentul este situat in sectorul 3 (trei) al capitalei, in imediata apropiere a:

- Metrou Nicolae Teclu la o distanta de 700m, aproximativ 7 minute pietonal;

- Numeroase centre comerciale (Metro, Ikea, Jumbo, Decathlon, Dedeman, etc.)

- Autostrada A2 la cateva minute distanta;

- Autostrada A0 la cateva minute distanta;

COMPARTIMENTARE :

Locuinta este dispusa pe doua etaje, 11 si 12, suprafata utila apartamentului fiind de 140.8mp, acesta avand spatii exterioare (terasa + balcon) la fiecare nivel al apartamentului. Terasa are o suprafata de 88.6mp, balconul 9.8mp.

Parter (etajul 11) are o suprafata totala de 53,8mp (scara si balconul incluse) si este compartimentat dupa cum urmeaza:

- Holul primitor cu o suprafata de 11.5mp;

- Dormitor cu suprafata de 12.8mp;

- Dormitor cu suprafata de 12.1mp;

- Balcon 9.8mp;

- Baie.

Etaj 1 (etajul 12) are o suprafata totala de 188mp (scara si terasa incluse) si este compartimentat dupa cum urmeaza:

- Zona de zi/Living cu o suprafata impresionanta de 44mp avand iesire catre terasa de 88.6mp;

- Bucataria deschisa catre living are o suprafata de 10.3mp, aceasta se poate inchide cu usurinta;

- Holul dormitorului matrimonial cu suprafata de 10mp;

- Baie cu suprafata de 5.3mp;

- Dormitor matrimonial cu suprafata de 16.4mp cu acces catre dressing de 7.5mp baia privata de 6mp ventilata natural.

Complexul dispune de doua lifturi spatioase, paza 24/7.

La pret se adauga TVA

Pentru detalii suplimentare sau pentru a organiza vizionari, va rugam sa ne contactati.

Citește mai mult

  • Tip apartament
    Apartament
  • Compartimentare
    Decomandat
  • Număr camere
    4
  • Dormitoare
    3
  • Număr bucătării
    1
  • Număr băi
    3
  • Geam la baie
    Da
  • Etaj
    11, 12
  • Suprafață utilă
    140.8 mp
  • Suprafață construită
    300 mp
  • Suprafață totală
    241.9 mp
  • Suprafață terasă
    88.6 mp
  • Disponibilitate
    Imediat
  • Orientare
    Nord-Vest
  • Confort
    Lux
  • Stare interior
    Nou
  • Număr balcoane
    1
  • Număr terase
    1
  • Imobil
    Bloc de apart.
  • Stadiu construcție
    Finalizată
  • An construcție
    2023
  • Construcție nouă
    Da
  • Tip construcție
    Beton
  • Număr etaje clădire
    11
  • Număr etaje retrase
    1

Facilități

Acces pentru persoane cu dizabilități
Apă
Apometre
Canalizare
CATV
Centrală proprie
Contor electric
Contor gaz
Curent
Gaz
Iluminat stradal
Încălzire prin pardoseală
Interfon
Internet
Izolație exterioară
Izolație interioară
Mijloace de transport în comun
Pază
Pază permanentă
Scară interioară
Străzi asfaltate
Telefon
Ușă intrare metal
Vedere panoramică
Vedere spre oraș
Necesare:

Site-ul nu poate funcționa corect fără aceste cookie-uri. Vezi cookie-urile

Statistică:

Strângem statistici anonime despre voi, vizitatorii unici, pentru a vă îmbunătăți experiența dumneavoastră. Vezi cookie-urile

Marketing:

Pentru a ne promova mai eficient serviciile noastre, folosim cookies pentru a vă identifica și a vă oferi proprietăți și servicii personalizate. Vezi cookie-urile

Acest site folosește cookies, află detalii. Alege ce tipuri de cookies dorești să permitem: