ID CP2486716

TEREN 207MP | DESCHIDERE DUBLA | URBANISM

Această proprietate nu mai este activă,
te invităm să vizualizezi proprietăți similare

ID CP2486716

200,000 €

Teren de 207 mp de vânzare
Aviatiei, Bucuresti
207 mp

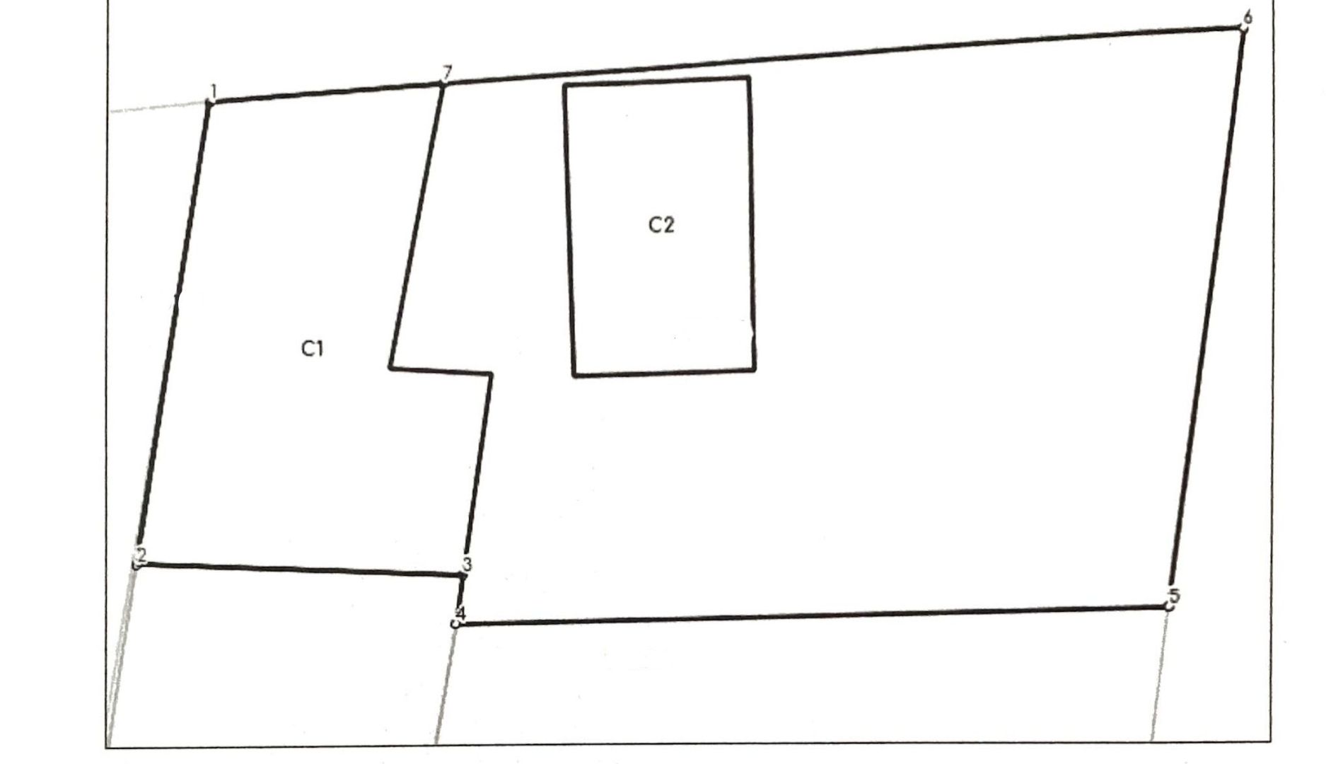
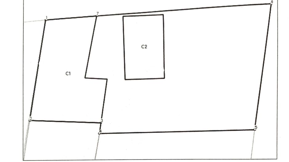
Îți propun un teren situat în zona Aviației, cu o suprafață de 207 mp și deschidere dublă de 11 m și 20 m, oferind flexibilitate în dezvoltare. Urbanismul de informare indică un POT de 45% și un CUT de 1.3, fiind potrivit pentru construcția unei clădiri P+2.

Amplasat într-o zonă premium, cu acces facil la mijloace de transport, centre business și facilități urbane, acest teren reprezintă o oportunitate excelentă pentru dezvoltatori sau investiție.

Contactează-mă pentru detalii!

Citește mai mult

  • Tip teren
    Construcții
  • Suprafață teren
    207 mp
  • Front stradal
    33.0 m
  • Număr fronturi stradale
    2
  • Clasificare
    Intravilan
  • Valoare incidență
    743.22
  • Disponibilitate
    Imediat
  • CUT
    1.3
  • POT (%)
    45.0

Facilități

Apă
Canalizare
Curent
Gaz
Iluminat stradal
Mijloace de transport în comun
Străzi asfaltate
Necesare:

Site-ul nu poate funcționa corect fără aceste cookie-uri. Vezi cookie-urile

Statistică:

Strângem statistici anonime despre voi, vizitatorii unici, pentru a vă îmbunătăți experiența dumneavoastră. Vezi cookie-urile

Marketing:

Pentru a ne promova mai eficient serviciile noastre, folosim cookies pentru a vă identifica și a vă oferi proprietăți și servicii personalizate. Vezi cookie-urile

Acest site folosește cookies, află detalii. Alege ce tipuri de cookies dorești să permitem: