ID CP2723180

PARC VERDI | 3 camere PREMIUM| 94mp + 13.20 mp terasa

ID CP2723180

510,000 € + 21% TVA

Apartament cu 3 camere de vânzare
Floreasca, Bucuresti
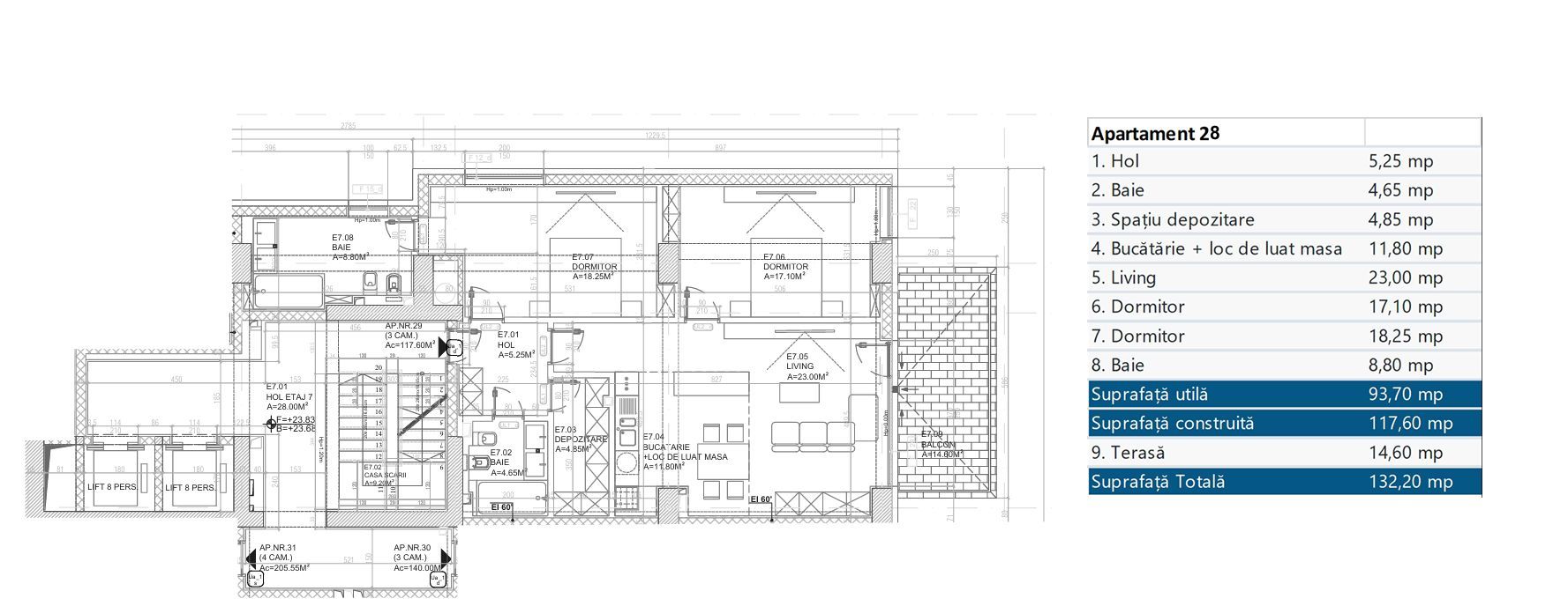
93.7 mp
2021

Impact Real Estate Advisors vă propune spre vânzare un apartament premium cu 3 camere, decomandat, 94mp suprafata utila + 13.20 terasa, într-un proiect rezidențial exclusivist din zona Floreasca – una dintre cele mai căutate și apreciate zone din București.

****La pretul afisat se adauga TVA.

Arhitectura modernă și designul elegant se îmbină perfect cu spațiile interioare ample și luminoase, datorită ferestrelor vitrate și finisajelor de cea mai bună calitate.

Unul dintre punctele forte ale proprietății îl reprezintă vederea panoramică spectaculoasă către Parcul Verdi, ce oferă liniște și o oază de verdeață chiar în mijlocul orașului.

Compartimentare:

- Zona de intrare: hol spatios cu storage, zonă de spălătorie si baie

- Zona de zi: living luminos cu loc de luat masa și bucătărie open-space, 34.8 mp

- Zona de noapte: dormitor matrimonial cu baie proprie (cada) și dressing, dormitor secundar .

* pozitionare EST- VEST

Dotări și finisaje premium

- Încălzire prin pardoseală – centrală proprie de bloc

- Sistem de climatizare LG VR-F

- Plăci ceramice Marazzi (dimensiuni floor-to-ceiling 320x160 mm)

- Parchet triplu stratificat Bauwerk (Elveția)

- Obiecte sanitare Villeroy & Boch

- Uși de interior și acces Dierre

- Tâmplărie aluminiu Alumil

Imobilul dispune de paza pe timp de zi si supraveghere video 24/7.

***În portofoliul nostru găsiți și alte apartamente cu 2 și 3 camere, cu dimensiuni și compartimentări variate, în același ansamblu premium.

***Locul de parcare poate fi achizionat separat la pretul de 28.000 +TVA, la subteran -1 sau in sitem Klaus, la -2, 30.000 +TVA -2locuri.

Vecinătăți: Apartamentul este situat într-o zonă premium, cu acces rapid către:

- Parcul Verdi – la câțiva pași

- Mall Promenada – 2 minute

- Școli și grădinițe de prestigiu: Școala „Herăstrău”, Liceul „Jean Monnet”, Grădinița Bambi Step by Step, British School

- Centre medicale și clinici private

- Restaurante, cafenele și zone de lifestyle din Floreasca și Dorobanți

- Acces facil către mijloace de transport și principalele artere din nordul Capitalei

Certificatul energetic va fi disponibil la momentul vânzării.

Agentia noastra va poate oferi consultanta bancara gratuita pentru obtinerea unui credit ipotecar/noua casa sau pentru alte informații bancare .

Totodata, va oferim un discount de 30% pentru design interior si mobila pe comanda.

Pentru mai multe detalii sau pentru a programa o vizionare, vă invităm să ne contactați.

Citește mai mult

  • Tip apartament
    Apartament
  • Compartimentare
    Semidecomandat
  • Număr camere
    3
  • Dormitoare
    2
  • Număr bucătării
    1
  • Număr băi
    3
  • Geam la baie
    Da
  • Etaj
    6
  • Suprafață utilă
    93.7 mp
  • Suprafață construită
    117.6 mp
  • Suprafață totală
    132.2 mp
  • Suprafață terasă
    13.2 mp
  • Disponibilitate
    Imediat
  • Confort
    Lux
  • Stare interior
    Ultrafinisat
  • Anul finisării
    2021
  • Număr terase
    1
  • Imobil
    Bloc de apart.
  • Stadiu construcție
    Finalizată
  • An construcție
    2021
  • Construcție nouă
    Da
  • Tip construcție
    Cărămidă
  • Număr etaje clădire
    8

Facilități

Acoperiș
Aer condiționat
Apă
Apometre
Bideu
Bucătărie deschisă
Cadă
Canalizare
CATV
Centrală imobil
Contor căldură
Contor electric
Contor gaz
Curent
Curte comună
Ferestre aluminiu
Garaj
Gaz
Geamuri termopan
Gresie
Iluminat stradal
Încălzire prin pardoseală
Interfon
Internet
Izolație exterioară
Lift
Mijloace de transport în comun
Nemobilat
Parchet
Străzi asfaltate
Supraveghere video
Telecomandă poartă garaj
Telefon
TV
Ușă intrare metal
Vedere panoramică
Videointerfon
Vopsea lavabilă
Stefania Savu - IMPACT REAL ESTATE ADVISORS
Stefania Savu
Broker

0734314483


Solicită chiar acum o vizionare
Telefon
Sună acum Solicită vizionare
Necesare:

Site-ul nu poate funcționa corect fără aceste cookie-uri. Vezi cookie-urile

Statistică:

Strângem statistici anonime despre voi, vizitatorii unici, pentru a vă îmbunătăți experiența dumneavoastră. Vezi cookie-urile

Marketing:

Pentru a ne promova mai eficient serviciile noastre, folosim cookies pentru a vă identifica și a vă oferi proprietăți și servicii personalizate. Vezi cookie-urile

Acest site folosește cookies, află detalii. Alege ce tipuri de cookies dorești să permitem: