ID CP2488378

4 camere| terasă 40 mp| PIATA VICTORIEI

ID CP2488378

570,000 €

Apartament cu 4 camere de vânzare
P-ta Victoriei, Bucuresti
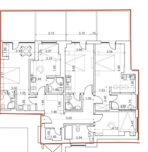
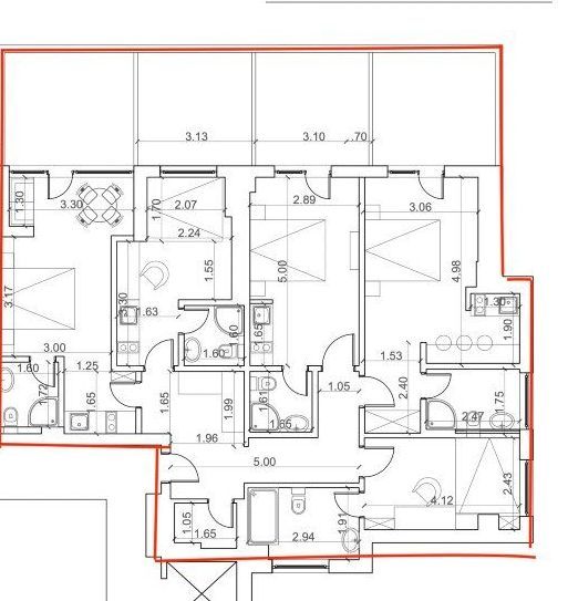
105.5 mp
2005

Impact Real Estate Advisors va propune spre vânzare un apartament spațios cu 4 camere, decomandat, într-una dintre cele mai căutate zone din București, Piata Victoriei. Imobilul are o suprafata utila de 105.5 mp utilI, la parterul unui imobil modern (construit în 2009, cu 5 niveluri).

Imobilul, se remarcă prin versatilitatea spațiului și accesibilitatea excelentă. Ideala pentru investiție! Apartamentul este în prezent folosit ca spațiu de birouri, oferind un randament bun la închiriere. De asemenea, este perfect apentru cupluri, familii sau birou de reprezentanță.

Compartimentarea se face dupa cum urmeaza: 4 camere cu acces direct către terasa de 43 mp, 2 grupuri sanitare, hol in L si bucatarie inchisa.

Dotări și finisaje premium:

- Lumini ambientale, riflaje moderne și mobilier de calitate superioară

- Aer condiționat

-podele din parchet

- Adăpost ALA la subsol

Transport & Accesibilitate:

- metrou Piata Victoriei 5 min pietonal

- STB: 100, 381, 205, 642, 381 si altele

- troleibuze: 79, 86

Educație & Cultură: Gradinita LTN, Liceul Teoretic Ion Barbu, Colegiul National Tudor Vianu, Universitatea Nationala de Muzica Bucuresti

Sănătate: Spitalul Sanador 1 min pietonal

Relaxare & Divertisment: Parcul Kiseleff, 5 minute pietonal

Restaurante & Cafenele: Pizza Mania, OTOTO CAFE Victoriei, Trattoria Buongiorno, Calderon 18, Vinexpert etc.

Alte puncte de interes:

- Casa Filipescu Cesianu– 7 minute pietonal

- Muzeul National de istorie Grigore Antipa, Muzeul National al Taranului Roman

- Hotel Minerva – 2 minute pietonal

- Complex studențesc Moxa – 12 minute pietonal

- America House

Certificatul energetic va fi disponibil la momentul vânzării.

Contactează-ne pentru mai multe detalii sau pentru a programa o vizionare!

Citește mai mult

  • Tip apartament
    Apartament
  • Compartimentare
    Decomandat
  • Număr camere
    4
  • Dormitoare
    3
  • Număr bucătării
    1
  • Număr băi
    5
  • Etaj
    Parter
  • Suprafață utilă
    105.5 mp
  • Suprafață construită
    122 mp
  • Suprafață terasă
    40.5 mp
  • Disponibilitate
    Imediat
  • Confort
    1
  • Stare interior
    Ultrafinisat
  • Număr terase
    1
  • Număr garaje
    1
  • Număr locuri parcare
    2
  • Imobil
    Bloc de apart.
  • Stadiu construcție
    Finalizată
  • An construcție
    2005
  • Construcție nouă
    Da
  • Tip construcție
    Beton
  • Număr etaje clădire
    5

Facilități

Acoperiș
Aer condiționat
Apă
Boxă la subsol
Bucătărie închisă
Bucătărie parțial utilată
Cabină de duș
Calorifere
Canalizare
CATV
Centrală imobil
Contor electric
Curte
Ferestre care se deschid
Garaj subteran
Geamuri termopan
Gresie
Iluminat stradal
Interfon
Lift
Mijloace de transport în comun
Mobilat parțial
Parchet
Străzi asfaltate
Străzi betonate
Telecomandă poartă garaj
Telefon
Ușă intrare metal
Uși interior MDF
Vopsea lavabilă
WC Serviciu
Alexandra Smarandoiu - IMPACT REAL ESTATE ADVISORS
Alexandra Smarandoiu
Broker

0745394222


Solicită chiar acum o vizionare
Telefon
Sună acum Solicită vizionare
Necesare:

Site-ul nu poate funcționa corect fără aceste cookie-uri. Vezi cookie-urile

Statistică:

Strângem statistici anonime despre voi, vizitatorii unici, pentru a vă îmbunătăți experiența dumneavoastră. Vezi cookie-urile

Marketing:

Pentru a ne promova mai eficient serviciile noastre, folosim cookies pentru a vă identifica și a vă oferi proprietăți și servicii personalizate. Vezi cookie-urile

Acest site folosește cookies, află detalii. Alege ce tipuri de cookies dorești să permitem: