ID CP3020084

2 camere renovat Rossini etaj 1- Floreasca

ID CP3020084

153,000 €

Apartament cu 2 camere de vânzare
Floreasca, Bucuresti
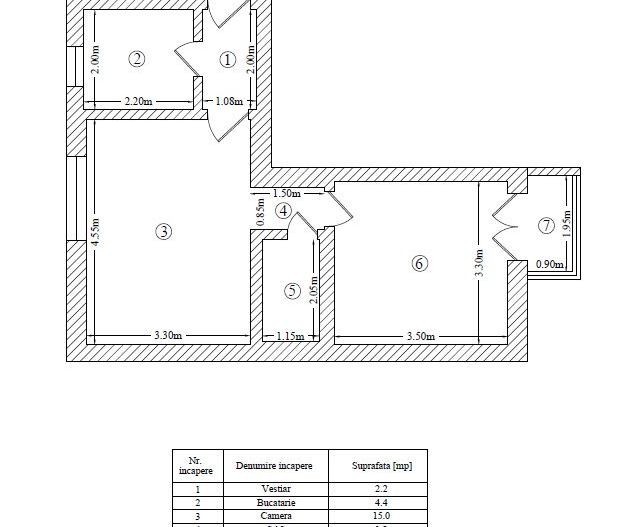
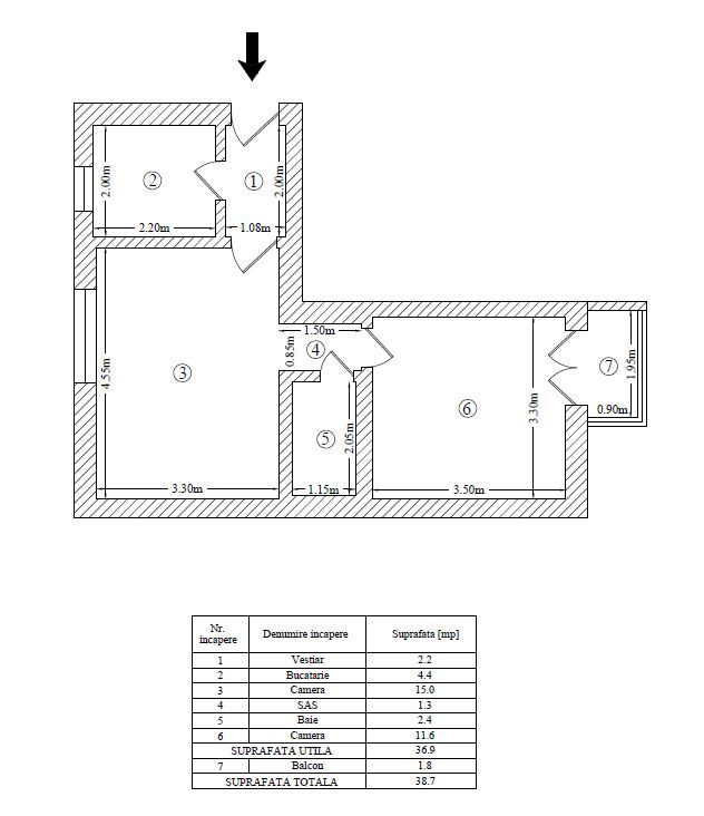
36.9 mp
1960

Va prezentam un apartament cu 2 camere, situat la etajul 1 al unui imobil cu 3 nivele, aflat pe strada Rossini, in cartierul Floreasca, la 1 min pietonal fata de Parcul Cinematograf Floreasca.

Renovarea completa si amenajarea moderna reusesc sa ii ofere aceste locuinte un ambient aerisit, functional si placut, peste asteptarile dimensiunii. Desi este un apartament micut, cochet, spatiul a fost foarte bine gandit si eficientizat.

Vederea este mixta, bucatarie si livingul au vedere catre gradina cu vegetatie matura aflata in spatele imobilului iar dormitorul dublat de balcon are vedere catre fata blocului.

Cartierul Floreasca este recunoscut pentru linistea sa, strazile aerisite si abundenta de spatii verzi, fiind inconjurat de parcuri si vegetatie matura. Locatia este excelenta, oferind acces rapid catre puncte importante ale orasului, dar pastrand in acelasi timp un aer retras si relaxant.

In proximitate regasim:

- Carrefour, Kaufland, Lidl si Farmacia Tei la cateva minute de mers pe jos;

- Parcul Cinematograf Floreasca la doar 1 minut de mers pe jos;

- Parcul Floreasca si Parcul Circului la cateva minute distanta;

- Statia de metrou Stefan Cel Mare la 8 minute de mers pe jos;

- Statia de autobuz la 1 minut distanta ( 182, 282, 605 );

- Scoala Gimnaziala Maria Rosetti la doar 5 minute de mers pe jos;

Va stau la dispozitie pentru detalii suplimentare si va invit la vizionare!

Citește mai mult

  • Tip apartament
    Apartament
  • Compartimentare
    Semidecomandat
  • Număr camere
    2
  • Dormitoare
    1
  • Număr bucătării
    1
  • Număr băi
    1
  • Etaj
    1
  • Suprafață utilă
    36.9 mp
  • Suprafață totală
    38.7 mp
  • Disponibilitate
    Imediat
  • Confort
    1
  • Stare interior
    Finisat modern
  • Număr balcoane
    1
  • Imobil
    Bloc mixt
  • Stadiu construcție
    Finalizată
  • An construcție
    1960
  • Reabilitat termic
    Da
  • Număr etaje clădire
    3

Facilități

Apă
Aragaz
Bucătărie mobilată
Bucătărie utilată
Cabină de duș
Calorifere
Canalizare
CATV
Curent
Ferestre PVC
Gaz
Geamuri termopan
Gresie
Iluminat stradal
Interfon
Internet
Izolație exterioară
Mijloace de transport în comun
Mobilat complet
Parchet
Spații agrement
Străzi asfaltate
Telefon
Termoficare
TV
Vopsea lavabilă
Wireless
Ursula Ionescu - IMPACT REAL ESTATE ADVISORS
Ursula Ionescu
Senior Advisor

0747106661


Solicită chiar acum o vizionare
Telefon
Sună acum Solicită vizionare
Necesare:

Site-ul nu poate funcționa corect fără aceste cookie-uri. Vezi cookie-urile

Statistică:

Strângem statistici anonime despre voi, vizitatorii unici, pentru a vă îmbunătăți experiența dumneavoastră. Vezi cookie-urile

Marketing:

Pentru a ne promova mai eficient serviciile noastre, folosim cookies pentru a vă identifica și a vă oferi proprietăți și servicii personalizate. Vezi cookie-urile

Acest site folosește cookies, află detalii. Alege ce tipuri de cookies dorești să permitem: