ID CP2988144

OPORTUNITATE | IMOBIL 3 APARTAMENT | 6 LOCURI DE PARCARE

ID CP2988144

1,275,000 €

Casă / Vilă cu 15 camere de vânzare
Dorobanti, Bucuresti
636 mp
2006

Vă prezentăm un imobil situat într-una dintre cele mai exclusiviste și căutate zone din București – Dorobanți, recunoscută pentru eleganță, accesibilitate și proximitatea față de puncte de interes importante.

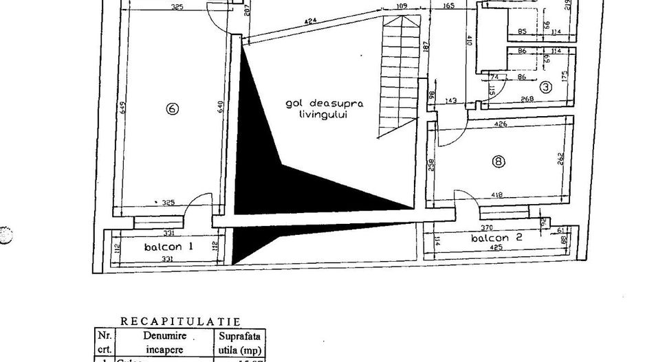
Clădirea are regim de înălțime D+P+4E și este compartimentată eficient în 3 apartamente spațioase, oferind flexibilitate atât pentru locuire, cât și pentru exploatare investițională (închiriere pe termen lung sau regim mixt).

Proprietatea dispune de 6 locuri de parcare, un avantaj major în această zonă centrală, unde disponibilitatea parcării este limitată.

Datorită amplasării premium și configurației sale, imobilul este ideal atât pentru rezidență, cât și pentru investiție, având potențial de randament excelent. Poate fi utilizat ca locuință multifamilială, sediu de firmă, clinică, birouri sau reconversie în apartamente de lux pentru închiriere.

Avantaje principale:

Localizare de top – Dorobanți

Regim de înălțime: D+P+4E

3 apartamente generoase

6 locuri de parcare

Potențial ridicat de rentabilitate

Versatilitate în utilizare

O proprietate rară, care îmbină poziția premium cu un potențial investițional solid.

Citește mai mult

  • Număr camere
    15
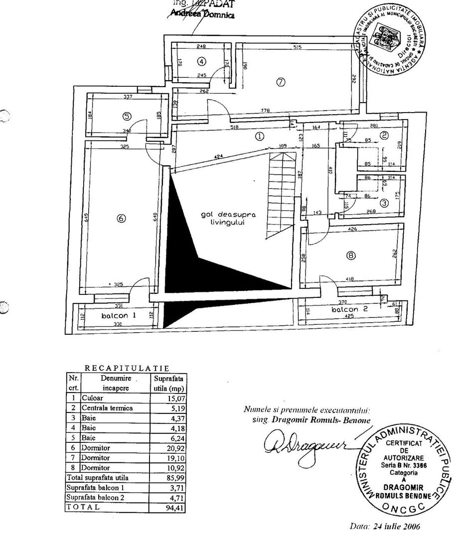
  • Număr băi
    8
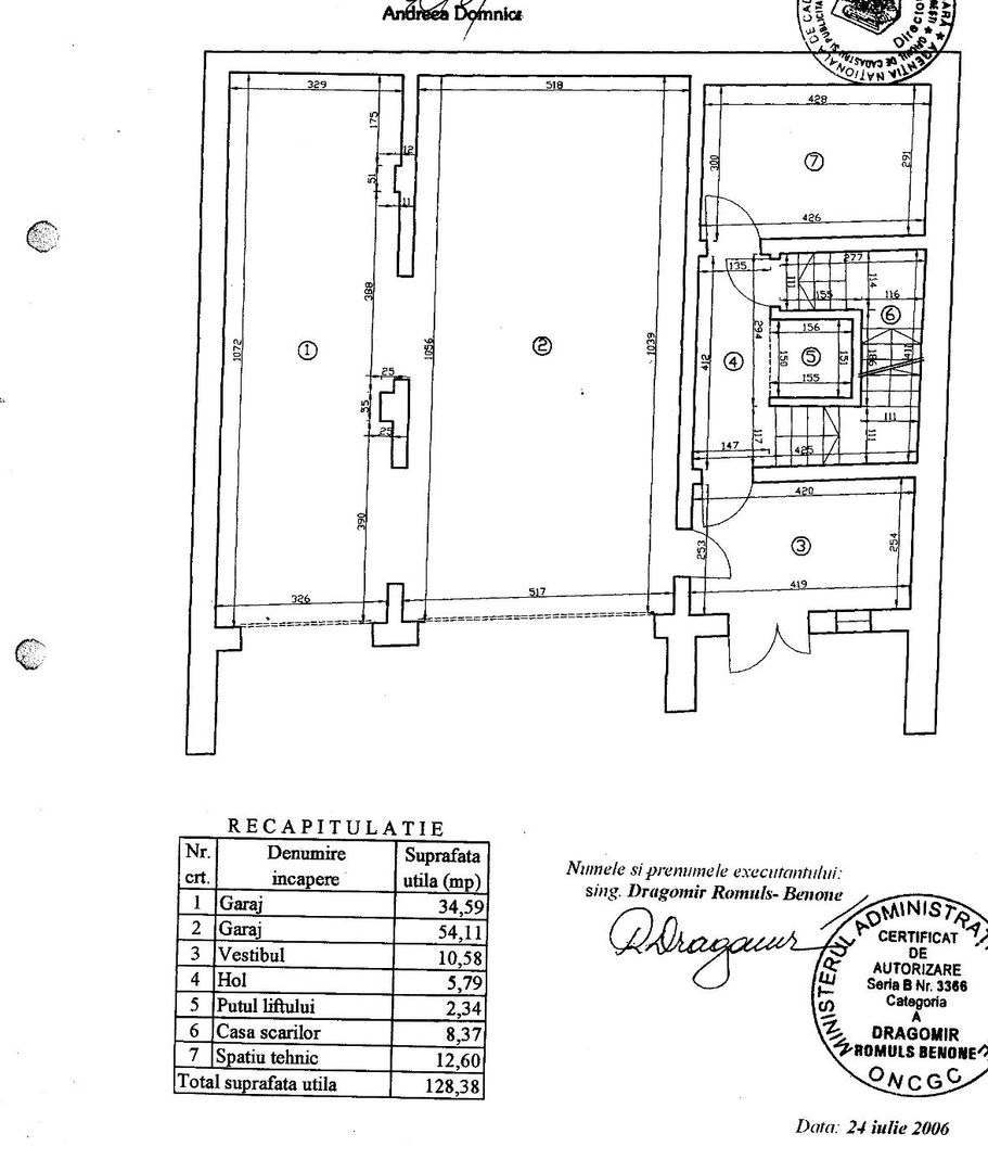
  • Număr garaje
    3
  • Număr locuri parcare
    6
  • Disponibilitate
    Imediat
  • Tip casă
    Individual
  • Stare interior
    Finisat clasic
  • Suprafață utilă
    636 mp
  • Suprafață construită
    660 mp
  • Suprafață teren
    200 mp
  • Suprafață terasă
    40 mp
  • Stadiu construcție
    Finisat
  • An construcție
    2006
  • Număr etaje clădire
    4
  • Număr etaje retrase
    1
  • Număr subsoluri
    1
  • Are demisol
    Da
  • Are etaj tehnic
    Da

Facilități

Apometre
Contor căldură
Contor electric
Cristian Radu - IMPACT REAL ESTATE ADVISORS
Cristian Radu

0765634361


Solicită chiar acum o vizionare
Telefon
Sună acum Solicită vizionare
Necesare:

Site-ul nu poate funcționa corect fără aceste cookie-uri. Vezi cookie-urile

Statistică:

Strângem statistici anonime despre voi, vizitatorii unici, pentru a vă îmbunătăți experiența dumneavoastră. Vezi cookie-urile

Marketing:

Pentru a ne promova mai eficient serviciile noastre, folosim cookies pentru a vă identifica și a vă oferi proprietăți și servicii personalizate. Vezi cookie-urile

Acest site folosește cookies, află detalii. Alege ce tipuri de cookies dorești să permitem: