ID CP3046041

Vila solidă cu potential mutiplu 5 camere + teren || Piața Romană–Polonă

ID CP3046041

900,000 €

Casă / Vilă cu 5 camere de vânzare
Dorobanti, Bucuresti
148 mp
1936

Impact Real Estate Advisors vă propune spre vânzare o vilă cu potențial multiplu, situată într-una dintre cele mai apreciate zone ale Capitalei, între Calea Dorobanților și Polonă. Proprietatea dispune de 5 camere și curte proprie, fiind ideală atât pentru rezidență, cât și pentru investiție.

Imobilul a fost consolidat și extins (S+P+E), beneficiind de un proiect realizat de arhitect, cu planuri complete și autorizație de construire valabilă până în iunie 2027. Lucrările au fost executate cu o firmă de construcții serioasă și sunt bine documentate.

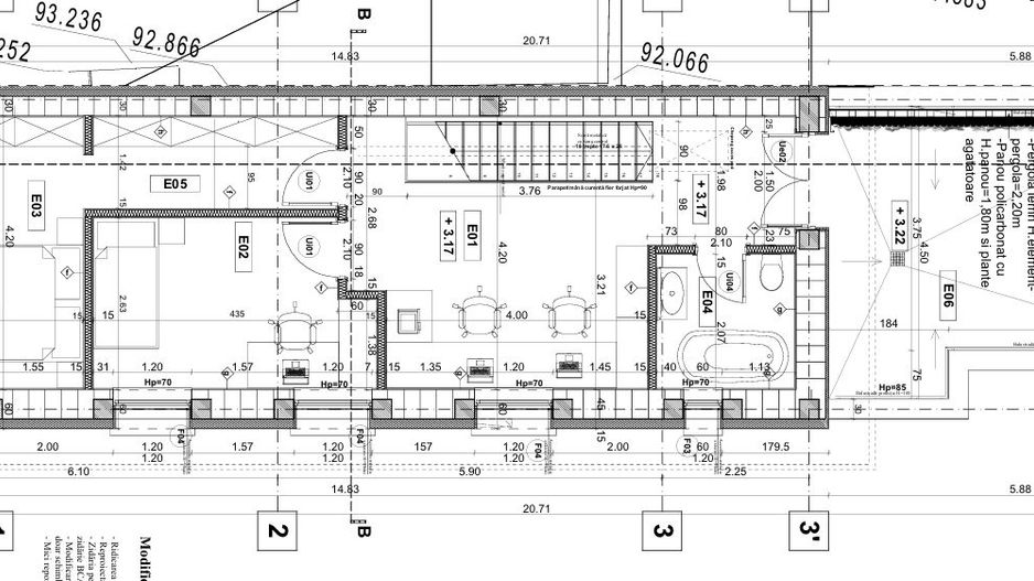
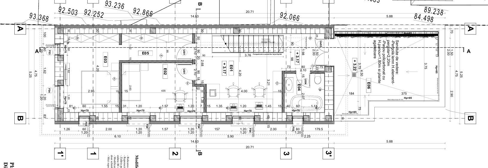
Compartimentare:

La parter: bucatarie deschisa, living, dormitor si baie (suprafata utila 69.80)

La etaj: dormitor cu dresing, dormitor secudar, living, baie si terasa (suprafata utila 56,5 + 77.80)

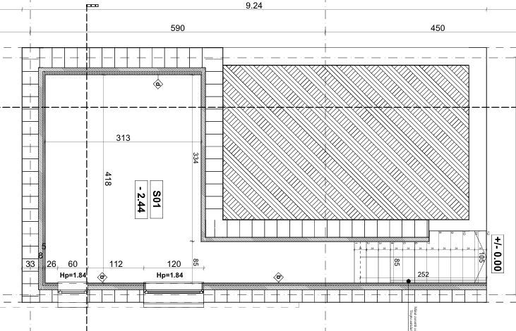
La subsol: camera tehnica 17.99 mp

Printre îmbunătățirile deja realizate se numără:

- hidroizolație cu vată bazaltică

- instalațiile electrice finalizate

- circuite trase conform proiectului

Proprietatea se vinde în stadiul actual (conform fotografiilor) și necesită:

- sistem de încălzire în pardoseală

- montarea unei pompe de căldură

- tâmplărie pentru ferestre

- finalizarea fatadei

Imobilul este amplasat într-o zonă protejată, oferind un cadru liniștit și exclusivist.

Suprafețe:

- teren: 371 mp

- suprafață utilă: 168.90 mp

- suprafață construită: 177 mp

Certificatul energetic va fi disponibil la momentul vânzării.

Pentru mai multe detalii sau pentru programarea unei vizionări, vă stăm cu drag la dispoziție.

Citește mai mult

  • Număr camere
    5
  • Dormitoare
    3
  • Număr bucătării
    1
  • Număr băi
    2
  • Număr terase
    1
  • Număr locuri parcare
    5
  • Disponibilitate
    Imediat
  • Tip casă
    Calcan
  • Stare interior
    Semifinisat
  • Anul finisării
    2026
  • Suprafață utilă
    148 mp
  • Suprafață construită
    177 mp
  • Suprafață construită la sol (Amprentă)
    99.0 mp
  • Suprafață teren
    371 mp
  • Suprafață curte liberă
    271 mp
  • Suprafață terasă
    22.8 mp
  • Stadiu construcție
    La gri
  • An construcție
    1936
  • Tip construcție
    BCA
  • Imobil consolidat
    Da
  • Număr etaje clădire
    1
  • Număr subsoluri
    1
  • Are pod
    Da

Facilități

Apă
Bucătărie deschisă
Canalizare
CATV
Curent trifazic (380V)
Iluminat stradal
Izolație exterioară
Izolație interioară
Mijloace de transport în comun
Nemobilat
Pivniță
Străzi asfaltate
Alexandra Smarandoiu - IMPACT REAL ESTATE ADVISORS
Alexandra Smarandoiu
Broker

0745394222


Solicită chiar acum o vizionare
Telefon
Sună acum Solicită vizionare
Necesare:

Site-ul nu poate funcționa corect fără aceste cookie-uri. Vezi cookie-urile

Statistică:

Strângem statistici anonime despre voi, vizitatorii unici, pentru a vă îmbunătăți experiența dumneavoastră. Vezi cookie-urile

Marketing:

Pentru a ne promova mai eficient serviciile noastre, folosim cookies pentru a vă identifica și a vă oferi proprietăți și servicii personalizate. Vezi cookie-urile

Acest site folosește cookies, află detalii. Alege ce tipuri de cookies dorești să permitem: