ID CP2727371

Vila tip duplex | 6 camere | 186mp utili | 2 locuri de parcare | Millo

ID CP2727371

289,000 € (negociabil)

Casă / Vilă cu 6 camere de vânzare
Central, Voluntari
186.3 mp
2025

Va propunem spre achizitie o vila spatioasa cu 6 camere, 3 bai, un grup sanitar, bucatarie si doua spatii de relaxare (living) in zona Voluntari/Matei Millo.

PUNCTE DE INTERES:

• Situata la cateva minute distanta de str. Erou Iancu Nicolae, proprietatea este situata in apropierea celor mai bune centre de invatamant din Bucuresti;

• Numeroase cladiri de birouri in apropiere ( Pipera/Aviatiei);

• Mall Promenada la cateva minute distanta cu masina;

• Centrul comercial Baneasa la cateva minute distanta cu masina;

• Numeroase centre de invatamant in apropiere;

• Padurea Baneasa;

• Acces facil la autostrada A3;

Zona este considerata ca fiind o zona rezidentiala a localitatii si o zona suburbana a Bucurestiului, cartierul fiind predominant format din locuinte tip Case/Vile.

DATE TEHNICE:

Fundatia constructiei este din beton armat iar structura de rezistenta din stalpi de beton armat cu planseu din beton armat. Zidaria exterioara si cea interioara aferenta compartimentarii este realizata din caramida.

COMPARTIMENTARE:

Proprietatea este dispusa pe un regim de inaltime P+1E+M dupa cum urmeaza:

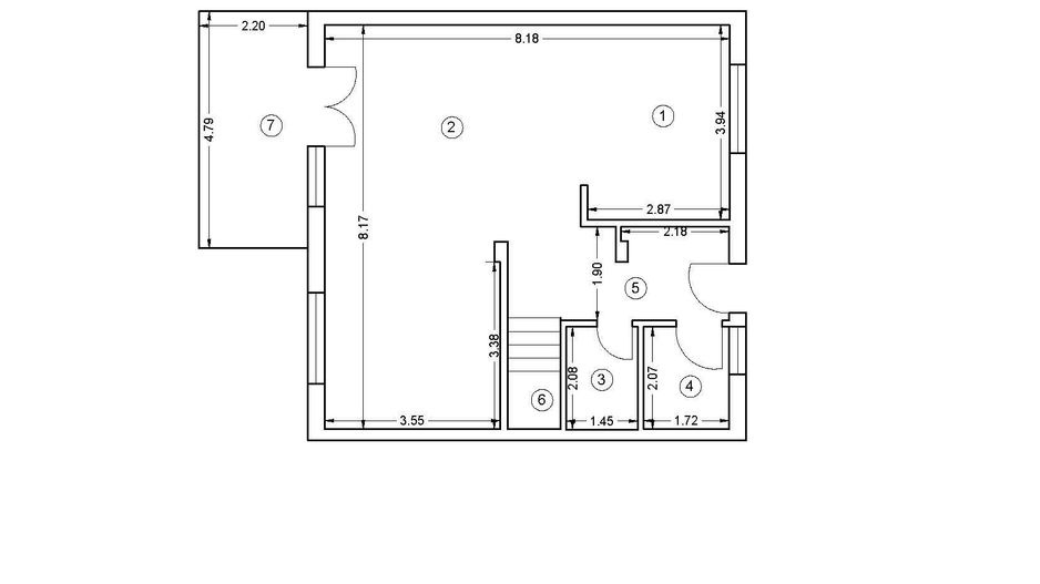
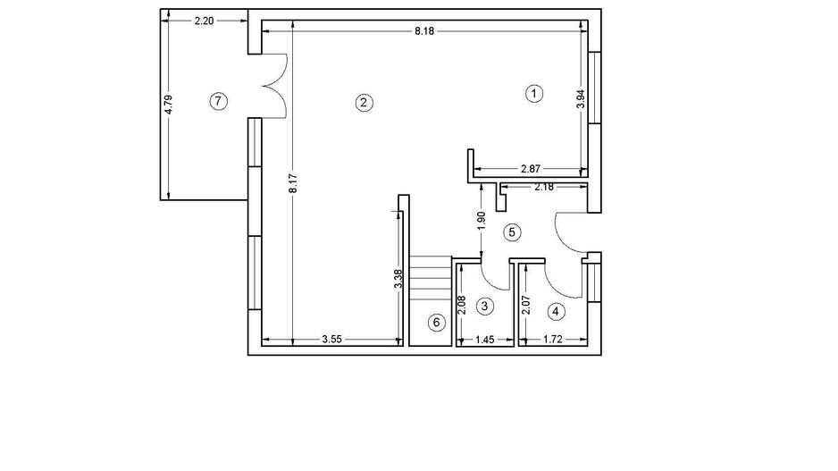
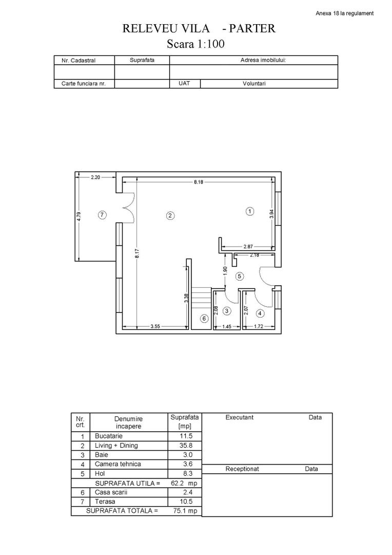
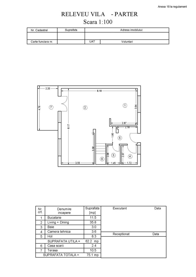
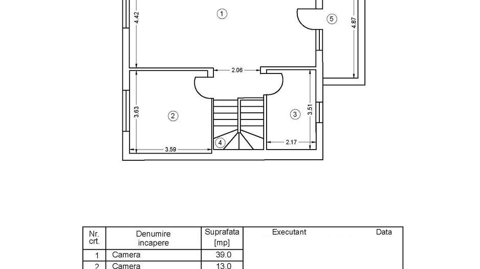
PARTER:

-Holul principal masoara 8.3mp;

- Camera tehnica are o suprafata de 3.6mp;

- Grup sanitar;

- Camera de zi / Living cu suprafata de 35.8mp cu iesire catre terasa;

- Bucataria deschisa catre living are o suprafata de 11.5mp, organizata pe 3 pereti. Aceasta se poate inchide cu usurinta;

- Terasa cu suprafata de 10.5mp.

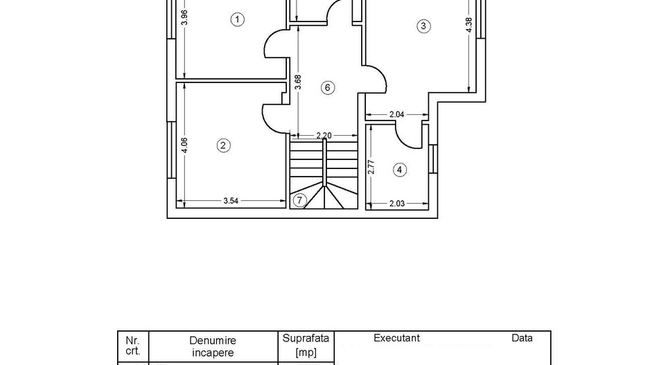
ETAJ 1:

- Hol;

- Dormitor matrimonial cu suprafata de 17.2mp are o baie privata cu suprafata de 5.8mp ventilata natural;

- Dormitor secundar de 14.9mp;

- Dormitor/birou/dressing cu suprafata de 13.6mp

- Baie.

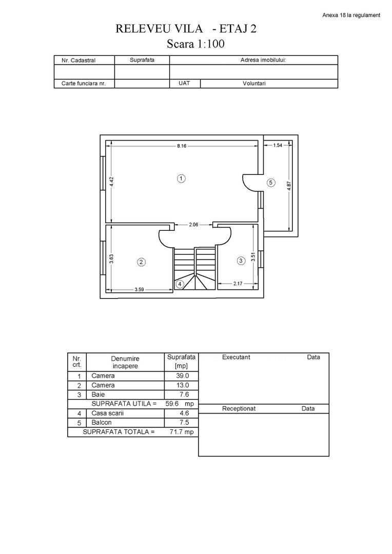
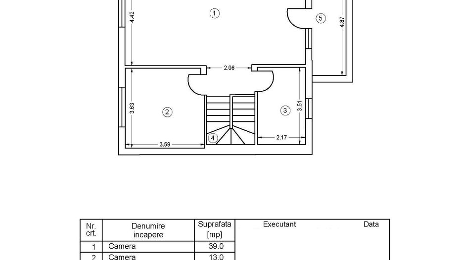
MANSARDA (inaltime decenta, se sta in picioare langa perete):

- Dormitor cu suprafata de 13mp;

- Baie ventilata natural;

- Zona de zi/zona de relaxare de 39mp cu iesire catre balconul de 7.5mp.

PARCARE:

- Spatiu suficient in fata casei pentru doua masini mari.

Nu se percepe TVA, proprietar persoana fizica.

Citește mai mult

  • Număr camere
    6
  • Dormitoare
    4
  • Număr bucătării
    1
  • Număr băi
    4
  • Geam la baie
    Da
  • Număr balcoane
    1
  • Număr terase
    1
  • Număr locuri parcare
    2
  • Disponibilitate
    Imediat
  • Tip casă
    Individual
  • Stare interior
    Nou
  • Suprafață utilă
    186.3 mp
  • Suprafață construită
    230 mp
  • Suprafață construită la sol (Amprentă)
    75.0 mp
  • Suprafață teren
    100 mp
  • Suprafață terasă
    18 mp
  • Deschidere
    9 m
  • Acoperiș
    Tablă
  • Stadiu construcție
    Semifinisat
  • An construcție
    2025
  • Construcție nouă
    Da
  • Tip construcție
    Cărămidă
  • Număr etaje clădire
    1
  • Are mansardă
    Da

Facilități

Aer condiționat
Apă
Apometre
Canalizare
CATV
Centrală proprie
Contor electric
Contor gaz
Curent
Faianță
Ferestre care se deschid
Ferestre PVC
Gaz
Grădină proprie
Gresie
Iluminat stradal
Încălzire prin pardoseală
Internet
Izolație exterioară
Mijloace de transport în comun
Nemobilat
Parcare deschisă
Șapă
Străzi asfaltate
Telefon
Ușă intrare metal
Vedere panoramică
Vopsea lavabilă
Mircea Andrei - IMPACT REAL ESTATE ADVISORS
Mircea Andrei
Manager

0720333387


Solicită chiar acum o vizionare
Telefon
Sună acum Solicită vizionare
Necesare:

Site-ul nu poate funcționa corect fără aceste cookie-uri. Vezi cookie-urile

Statistică:

Strângem statistici anonime despre voi, vizitatorii unici, pentru a vă îmbunătăți experiența dumneavoastră. Vezi cookie-urile

Marketing:

Pentru a ne promova mai eficient serviciile noastre, folosim cookies pentru a vă identifica și a vă oferi proprietăți și servicii personalizate. Vezi cookie-urile

Acest site folosește cookies, află detalii. Alege ce tipuri de cookies dorești să permitem: