ID CP2811964

TEREN AUTORIZATIE | 317MP | STRAULESTI

ID CP2811964

210,000 €

Teren de 317 mp de vânzare
Straulesti, Bucuresti
317 mp

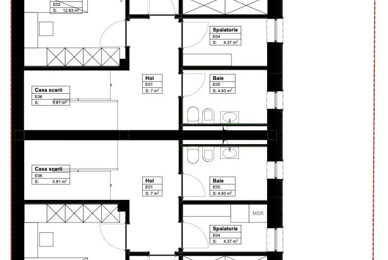
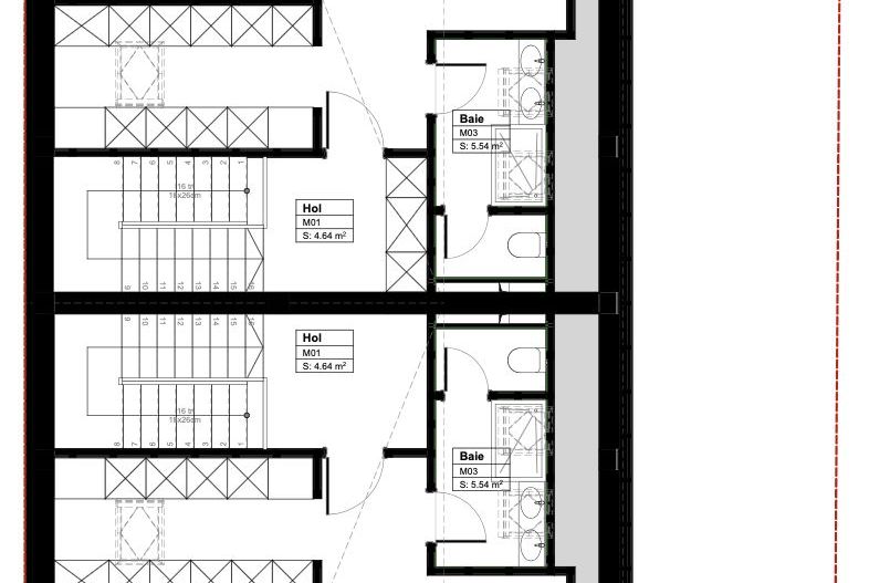
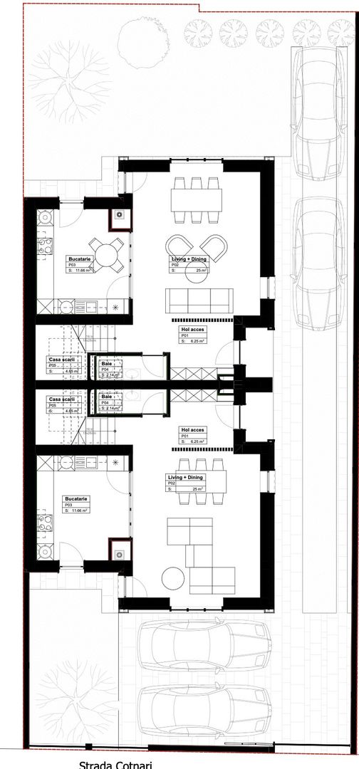
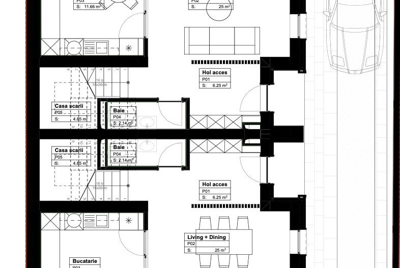
Într-una dintre cele mai atractive și dinamice zone din nordul Capitalei, în Străulești, se află acest teren cu o suprafață de 317 mp și o deschidere de 11,8 metri, ideal pentru dezvoltare rezidențială. Proprietatea beneficiază de autorizație de construire pentru regim de înălțime P+1+M, cu un POT de 45% și un CUT de 1.1, oferind flexibilitate și un excelent raport între suprafața construită și cea de teren.

Amplasarea este una deosebită, într-o zonă verde și liniștită, aflată în imediata apropiere a Pădurii Străulești, dar totodată foarte aproape de metrou și de principalele artere care fac legătura cu centrul orașului și zonele de interes din nordul Bucureștiului. Terenul este înconjurat de dezvoltări rezidențiale moderne, iar infrastructura zonei se află într-o continuă îmbunătățire, ceea ce îl transformă într-o alegere inspirată atât pentru construcția unei locuințe personale, cât și pentru o investiție sigură, cu potențial real de apreciere în timp.

Prin combinația dintre localizare, autorizare și contextul urban în plină expansiune, această proprietate reprezintă o oportunitate unică pentru cei care caută să dezvolte un proiect rezidențial elegant într-una dintre cele mai promițătoare zone ale Bucureștiului.

Citește mai mult

  • Tip teren
    Construcții
  • Suprafață teren
    317 mp
  • Front stradal
    11.8 m
  • Număr fronturi stradale
    1
  • Deschidere la
    Șosea
  • Clasificare
    Intravilan
  • Valoare incidență
    602.24
  • Disponibilitate
    Imediat
  • CUT
    1.1
  • POT (%)
    42.58
  • Autorizație de construcție
    Da
  • Număr etaje clădire
    1
  • Număr etaje retrase
    1
  • Are mansardă
    Da

Facilități

Apă
Canalizare
Curent
Gaz
Iluminat stradal
Mijloace de transport în comun
Străzi asfaltate
Cristian Radu - IMPACT REAL ESTATE ADVISORS
Cristian Radu

0765634361


Solicită chiar acum o vizionare
Telefon
Sună acum Solicită vizionare
Necesare:

Site-ul nu poate funcționa corect fără aceste cookie-uri. Vezi cookie-urile

Statistică:

Strângem statistici anonime despre voi, vizitatorii unici, pentru a vă îmbunătăți experiența dumneavoastră. Vezi cookie-urile

Marketing:

Pentru a ne promova mai eficient serviciile noastre, folosim cookies pentru a vă identifica și a vă oferi proprietăți și servicii personalizate. Vezi cookie-urile

Acest site folosește cookies, află detalii. Alege ce tipuri de cookies dorești să permitem: